• Home
  • Projekte
  • Kontakt
  • Datenschutz
Ingenieurbüro Gehrke
  • Home
  • Projekte
  • Kontakt
  • Datenschutz
    © Ingenieurbüro Gehrke

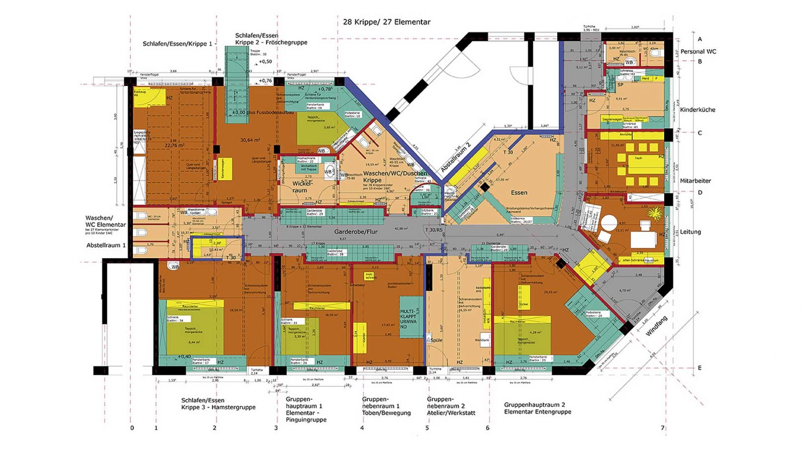
    Umbau einer Gewerbefläche in eine Kita – Hamburg-Bahrenfeld

    Vorheriges Projekt
    Nächstes Projekt

      © Ingenieurbüro Gehrke